PORTFÓLIO
Integrado
Abaixo apresentamos alguns projetos elaborados com muita técnica e criatividade. Entre eles estão: projetos elétricos em baixa tensão, hidrossanitários e estruturais.
Residência no Laranjal
Pelotas, RS
124 m²
Arquitetônico, estrutural, elétrico, hidrossanitário e acompanhamento de obra
Solução completa para residência unifamiliar no Laranjal. Foi adotada parede dupla com EPS (isopor) e revestimento em madeira, otimizando o conforto térmico.
Residência Barra
Barra do Chuí, RS
212,5 m²
elétrico e hidrossanitário
Projeto elétrico e hidrossanitário para residência de veraneio, focando em sistemas de água quente eficientes e segurança residencial. Arquitetônico por Setembro Arquitetura.
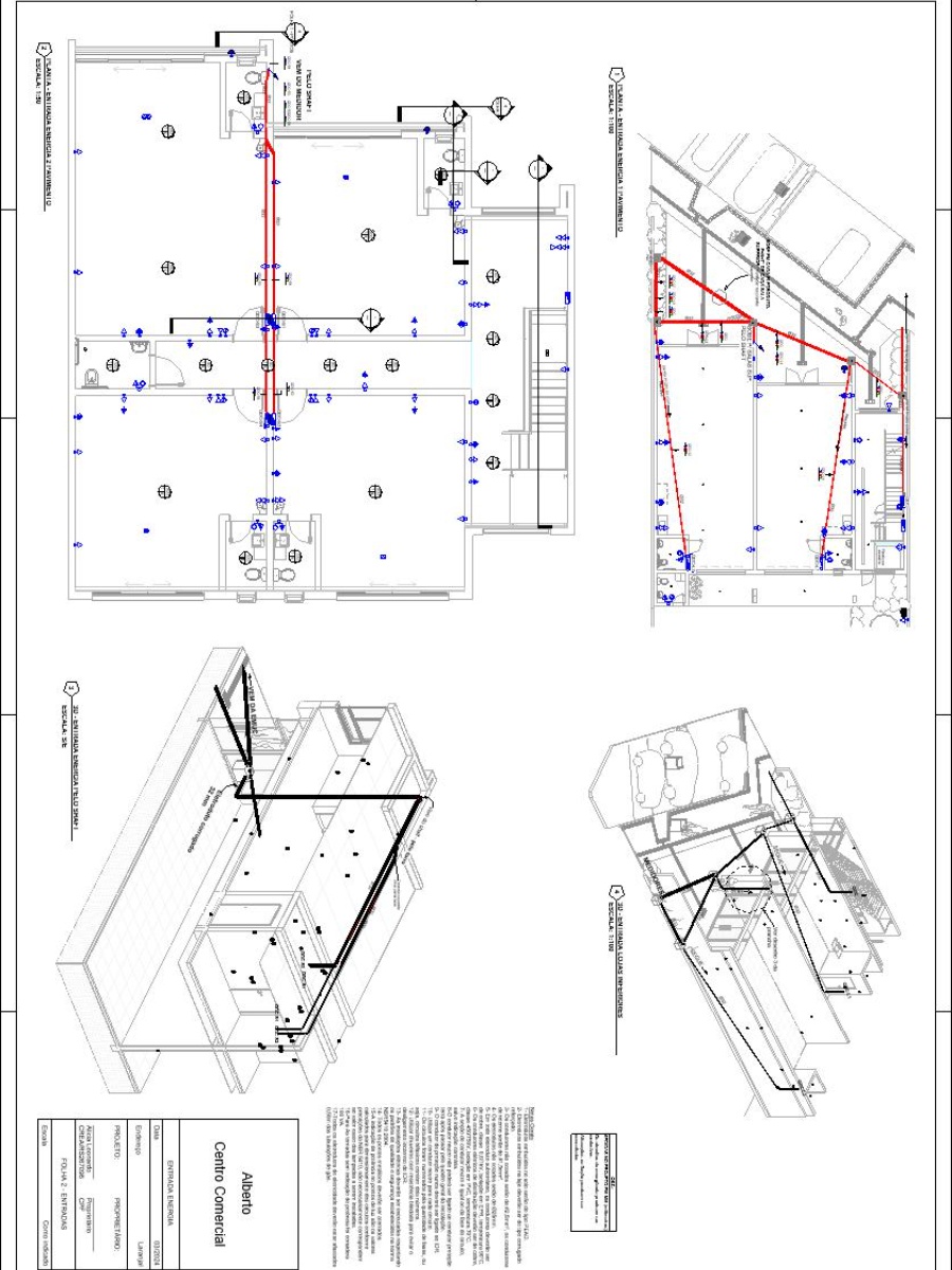
Centro Comercial Tramonto
Pelotas/RS
572,93 m²
Gerenciamento de obra
Acompanhamento técnico e gestão de qualidade e compra de materiais na execução deste centro comercial.
Edifício Zolet
Chapecó, SC
Aprox. 720 m²
Elétrico
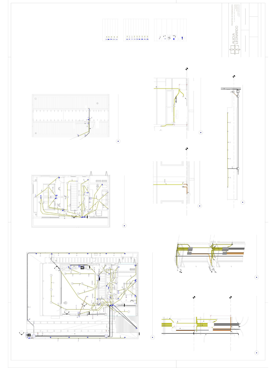
Retrofit elétrico completo para edifício comercial, integrando novas unidades e modernizando a infraestrutura.
Centro Comercial S/N
Pelotas, RS
Aprox. 477 m²
Elétrico e compatibilização BIM
Modelagem e compatibilização hidrossanitária integrada com novo projeto elétrico de baixa tensão para pavilhão comercial.
Fachada Av. Brasil
Pelotas, RS
Aprox. 30 m²
Revitalização de fachada
Projeto de modernização de fachada com reposicionamento de entradas e otimização do espaço de estacionamento.
Casa Granja
Chapecó, SC
Aprox. 80 m²
Elétrico
Modernização completa da rede elétrica para residência rural, garantindo segurança e compatibilidade.